Котел водогрейный КВр 1,25 (ПОВЫШЕННОЙ ЖЕСТКОСТИ)

Под заказ 10 дней
Котел водогрейный КВр 1,25 (ПОВЫШЕННОЙ ЖЕСТКОСТИ)
0 р.
Наличие: Наличие уточняйте
ЗАКАЗАТЬ
Описание
Технические характеристики котла водогрейного КВр 1,25-95КБ повышенной жёсткости 
Наименование показателя Значение
Номинальная теплопроизводительность, МВт (Гкал/ч) 1,25(1.08)
Расчетный вид топлива Уголь
Расчетный расход топлива, кг/ч 221
Коэффициент полезного действия, %, не менее 82
Рабочее давление воды, Мпа (кгс/см2) 0,6(6,0)
Пробное давление воды, Мпа (кгс/см2) 0,9(9,0)
Температура на входе в котле, °С 70
Температура воды на выходе из котла, °С 95
Гидравлическое сопротивление, Мпа, не более 0,065
Расход воды через котел, м3/ч, не менее 43
Водяной объем котла, м3 1,3
Поверхность нагрева котла, м2 52,5
Объем топочной камеры, м3 3,8
Температура уходящих газов, °С, не более 200
Аэродинамическое сопротивление котла, Па, не более 300
Масса котла, кг, не более 3500
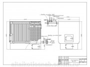
Габаритный размеры котла по обмуровке мм (ДхШхВ) 3000х1700х2400
Срок службы, лет, не менее 10
 
Комплектация котла КВр-1,25-95КБ повышенной жёсткости
Наименование Кол.
Блок котла в легкой обмуровке 1
Топка ручная ОУР 1
Рама стальная 1
Затвор дисковый Ду-100, Ру16 2
Кран шаровый Ду-20, Ру-16 1к-т.
Клапан предохранительный 17с28нж, Ду-50, Ру-0,35/0,7 1
Термометр в оправе ТТЖ-М 0-150 2
Манометр МП 3У Ру-10 2
Кран трехходовой 11б18бк, Ду-16, Ру-16 2
Вентилятор ВЦ 14-46 №2,5 4/3000 1
Техническая эксплуатационная документация, компл. 1


Описание котла
Котел стальной водогрейный КВр-1,25-95КБ повышенной жёсткости предназначен для теплоснабжения индивидуальных жилых домов и зданий коммунально – бытового назначения, оборудованных системами отопления с принудительной циркуляцией воды при рабочем давлении до 0,6 МПа (6,0 кгс/см2).
Трубная система котла состоит из фронтового экрана, двух боковых топочных экранов, конвективный блок состоит из 10 пакетов (5 левых и 5 правых) симметричной конструкции., разделенные по ходу газов средним конвективным пакетом на две ступени, что увеличивает время пребывания газов в газоходе и тем самым увеличивает КПД котлоагрегат.
Котел КВр-1,25-95КБ повышенной жёсткости комплектуется ручной топкой ОУР, запорно-регулирующей арматурой, термометрами и манометрами.
Экранная часть котла изготавливается из трубы ø76 мм. с толщиной стенки 3,5мм., конвективная часть котла изготавливается из трубы ø57 мм. с толщиной стенки 3,5мм., а специально организованная гидравлическая схема котлов обеспечивает оптимальные скорости движения воды, это снижает процесс накипеобразования на внутренней поверхности труб, что является не маловажным фактором в продолжительности работы котла.
Котлы предназначены для сжигания каменных и бурых углей, дров и древесных отходов, газа и жидкого топлива (дизельное топливо, мазут, нефть), укомплектованы чугунными колосниками, либо горелочным устройством, вид которого согласуется по дополнительному договору с Заказчиком.
Конструкция топочной камеры котлоагрегата позволяет обеспечить более полное выгорание топлива и снизить температуру газов на выходе из нее до 6000С, что значительно ниже температуры деформации золы, поэтому зола покидает топку котла уже в затвердевшем состоянии что исключает возможность твердого зашлаковывания конвективных поверхностей нагрева.
В газоходах выбраны скорости газов, которые обеспечивают условия самообдувки и самоочистки конвективных поверхностей и обеспечивают высокую эффективность теплообмена на протяжении всего срока эксплуатации котла.
Для механической очистки конвективных пакетов предусмотрены съемные прочистные люки, расположенные сверху на котле.
Транспортирование котла может осуществляться всеми видами транспорта, как одним транспортабельным блоком на опорной раме в изоляции и обшивке, так и отдельно от рамы, либо «россыпью» с монтажом на месте Заказчика. За счет блочности котла и легкоснимаемой обшивке, увеличивается его ремонтопригодность.
Котлы данной серии проектируются на предприятии на протяжении 15 лет, поэтому котлоагрегаты тщательно отработаны конструктивно и технологически, проверены в длительной эксплуатации, что позволяет говорить о их высокой надежности.

Гарантии изготовителя

  • Изготовитель гарантирует соответствие котла стального водогрейного с ручной топкой требованиям ГОСТ 30735-2001, ГОСТ 21563-93, ТУ 4931-001-21416242-2014,
  • ТР ТС 010/2011 «О безопасности машин и оборудования», при соблюдении условий транспортирования, хранения, монтажа и эксплуатации, установленных техническими условиями и руководством по эксплуатации.
  • Гарантийный срок эксплуатации -12 месяцев со дня ввода в эксплуатацию в пределах гарантийного срока хранения.
  • Гарантийный срок хранения- 24 месяца со дня отгрузки с предприятия - изготовителя.
  • Гарантийные сроки хранения и эксплуатации на комплектующие изделия – согласно нормативно -  технических и эксплуатационных документов изготовителя.
  • Средний срок службы 10 лет

Предприятие-изготовитель оставляется за собой право вносить в конструкцию котла непринципиальные изменения и усовершенствования. 

Характеристики
ПроизводительСобственное производство
Назначениеодноконтурный (только отопление)
Страна производстваРоссия
Сфера примененияпромышленные
Тип котлаКомбинированные
Площадь обогрева12500 кв. м
Вид топливауголь